Artspan Inc.: Balsam

Functional Versatility

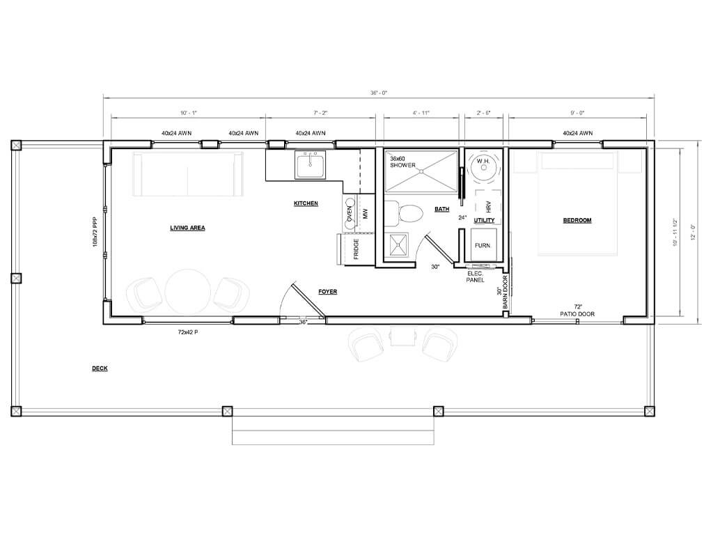
Balsam

Size: 432 sq.ft.

Number of Bedrooms: 1 bedroom

Number of Bathrooms: 1 bathrooms

Includes the following panels and hardware needed to assemble your exterior building shell:

Pre-cut wall and roof panels
Pre-cut wall and roof panels
Standard colour selection, one colour
Standard colour selection, one colour
Fascia & ridge trims
Fascia & ridge trims
Roof seam caps
Roof seam caps
One piece corners
One piece corners
Bolt-together Steel Roof Frame
Bolt-together Steel Roof Frame
Stamped structural drawings
Stamped structural drawings
Required sealants, fasteners, and connection angles for panel assembly
Required sealants, fasteners, and connection angles for panel assembly

Does not include windows/doors and all interior finishes.

(Interior walls, flooring, cabinetry, etc.)

Contact us for pricing on additional options/upgrades or custom floorplans.

Architectural Plans